不動産情報
徳島設計工房は、設計・施工業務と同時に徳島県全域を営業エリアとし、お客様のニーズに幅広く応えられるように不動産全般を業務としております。徳島県の不動産の事ならどんな事でもご相談ください。
取扱物件
徳島市丈六町宅地分譲受付中
●所在地/徳島市丈六町西内34-1及び34-5の各一部●地目/宅地●総区画数/4区画●今回販売区画数/2区画●用途地域/無指定●都市計画/調整区域●建ペイ率/70%●容積率/200%●開発面積/1,183.72m²●開発許可番号/徳市開第084号●工事完了予定日/令和2年7月●道路/5m舗装道路●交通/徳島市営バス桜間バス停徒歩5分(400m)●教育 /渋野小学校・南部中学校●電気/四国電力●ガス/LPG●水道/市営水道●排水/有り●取引態様/売主
板野郡藍住町 勝瑞字東勝地 (勝瑞駅 ) 住宅用地
・所在地/徳島県板野郡藍住町勝瑞字東勝地
・交通/JR高徳線 / 勝瑞駅 徒歩5分 ・最適用途/住宅用地 ・今回販売区画数/3区画 ・都市計画/非線引区域 ・建ペイ率/60% ・容積率/200% ・今回販売価格/7,229,800円~11,856,250円・土地面積帯/161.50㎡~225.79㎡・道路/西 5.2m 公道・条件等/建築条件付き
藍住町奥野前川住宅用地
・所在地/徳島県板野郡藍住町奥野字前川
・交通/【バス】 四軒屋南 停歩8分・地目/宅地 ・今回販売区画数/4区画 ・用途地域/- ・都市計画/非線引区域 ・建ペイ率/60% ・容積率/200% ・今回販売価格/9,216,700円~10,659,000円 ・土地面積帯/164.71㎡~207.29㎡・道路/南 5.2m 公道 接面6.3m ・ 西 5.2m 公道 接面12.3m ・ 南西 5.2m 公道 接面4.2m ・設備/-・取引態様/売主 ※建築条件付き ・備考/工事完了予定日:2024年3月
藍住南小学校まで徒歩6分!
周辺環境も充実しております☆
徳島市 八万町中津浦 (二軒屋駅 ) 住宅用地
・所在地/徳島県徳島市八万町中津浦
・交通/JR牟岐線 / 二軒屋駅 徒歩20分・地目/宅地 ・今回販売区画数/1区画 ・用途地域/1種低層 ・都市計画/市街化区域 ・建ペイ率/60% ・容積率/100% ・今回販売価格/16,133,600円~16,133,600円 ・土地面積帯/190.51m²~190.51m² ・道路/南東 4.0m 公道 接面10.6m・設備/-・取引態様/売主 ※建築条件付き ・備考/八万小学校まで徒歩7分、マルヨシセンター城南店まで徒歩2分の環境の良い場所です☆
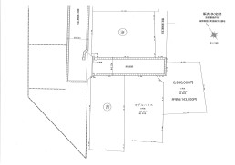
板野郡藍住町 住吉字逆藤 (勝瑞駅 ) 住宅用地
・所在地/徳島県板野郡藍住町住吉字逆藤
・交通/JR高徳線 / 勝瑞駅 徒歩29分・地目/宅地 ・今回販売区画数/1区画 ・用途地域/- ・都市計画/非線引区域 ・建ペイ率/60% ・容積率/200% ・今回販売価格/10,880,000円 ・土地面積帯/207.95㎡(公簿)・市道負担面積/なし・道路/南 公道 ・設備/-・取引態様/売主 ※建築条件付き ・備考/-













![.
モニターハウスキャンペーン🎁
(^O^)\受付中/!!!
モニターハウスキャンペーンご契約者様限定特典✨
☟☟☟☟☟
⬛人気の「乾太くん」をはじめ、ガス設備3点セット
[乾太くん+床暖房+エコジョーズ]
⬛約50万円相当の家具🪑
!!!総額約100万円相当をプレゼント!!!
※モニターハウスキャンペーンとは...
①弊社所有の藍住町の分譲地にて
住宅を新築いただける方(限定2棟)
②建物完成後に3ヶ月程度モデルハウスとして
当社の実施する見学会等にご協力いただける方
③HPやSNS等に掲載しお客様の声として
撮影などにご協力いただける方
④募集期間:8/18(月)~10/31(金)
⑤2026年1月末までにご契約いただける方
お得に家づくりをはじめられる大チャンス!!!
気になる方は、ぜひお早めにご相談ください✨
弊社ホームページやInstagramのDMから
ご連絡お待ちしております☺
┈┈┈┈┈┈┈ ❁ ❁ ❁┈┈┈┈┈┈┈┈
◇モデルハウスや水回り設備を展示した川内ショールームの来場予約、カタログ請求は24時間受付しております⋆⸜ ⚘ ⸝⋆
[来場予約フォーム]
https://tsk-k.co.jp/reservation/
[カタログ請求・お問い合わせフォーム]
https://tsk-k.co.jp/contact/
◇お電話での受付も可能です📞
TEL 088-678-2305
営業時間 10:00〜18:00
定休日 毎週水曜日
┈┈┈┈┈┈┈ ❁ ❁ ❁┈┈┈┈┈┈┈┈
◆耐震等級3構造体⇒@tsk.1984
◆リノベーション、リフォームをご検討の方⇒@tsk.reform1984
◆不動産情報⇒@tsk.real_estate
#マイホーム #マイホーム計画 #外観 #徳島 #注文住宅 #家づくり #home #一戸建て #おしゃれな家 #新築 #施工事例 #新築一戸建て #自由設計 #シンプルな暮らし #暮らしを楽しむ #シンプルライフ #モダン住宅 #おうち時間 #丁寧な暮らし #新築注文住宅 #オーダーメイド住宅 #無垢材の家 #徳島設計工房 #和モダンの家 #シンプルモダン #かっこいい家 #モニターハウス募集 #モニターハウスキャンペーン #モニターハウス](https://scontent-nrt1-2.cdninstagram.com/v/t51.82787-15/562527801_18070603538255966_4155690526270725457_n.jpg?stp=dst-jpg_e35_tt6&_nc_cat=105&ccb=7-5&_nc_sid=18de74&efg=eyJlZmdfdGFnIjoiQ0FST1VTRUxfSVRFTS5iZXN0X2ltYWdlX3VybGdlbi5DMyJ9&_nc_ohc=fmPlbx6d434Q7kNvwGHyY2O&_nc_oc=AdnpoM4uczlkCnmjg94Fc1x-rnYCFuVd7EujFN49eDlgaeMsAC5H6PF4lLMO3bbFhac&_nc_zt=23&_nc_ht=scontent-nrt1-2.cdninstagram.com&edm=AL-3X8kEAAAA&_nc_gid=_DzzBquqqiggnXkBoYt_lw&oh=00_Afiyq1LuQh5_KJS5UjWOpdWRqTXHN7EqYE1iWa_gS3RXzg&oe=693215DA)
